theSpaceTriplex
theSpace Triplex was an exciting addition to our venue portfolio in 2015. Located right at the hub of the modern festival where Hill Place meets Nicholson St, next door to theSpace @ Surgeons Hall and across the road from theSpace @ Symposium Hall and the Festival Theatre. The venue offers three floors, two quite unique performance spaces and has been defined by the media as a very special venue at the heart of the Fringe.
The venue has hosted an array of theatre, dance, physical theatre, circus, acapella and music. The larger space known as ‘Big’ is ideal for large to mid-scale work and the ‘Studio’ very popular for music, cabaret, comedy and spoken word.


Big
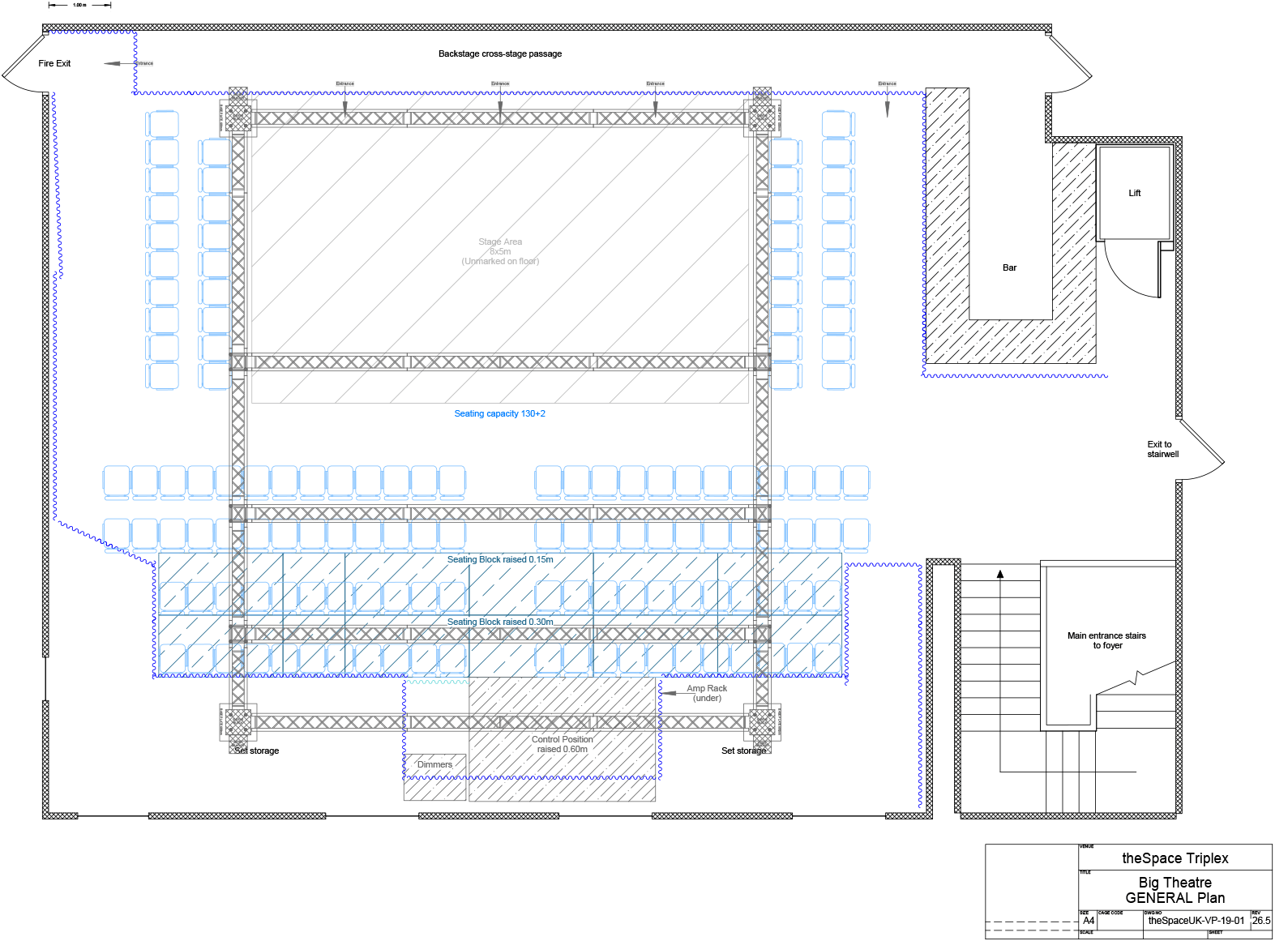
We don’t mess about. We called it Big because that’s what it is! Big is our stellar performance space. It’s a large black box configured as a large 8x5m floor stage with 130 seats (thrust configuration) or 90 seats (end-on configuration) and two rows of raised seating. The truss grid is 4m high and the apex of the arched roof above is easily as high again; it’s a veritable cathedral to the performing arts.
- Audience capacity
- 130 (thrust) or 90 (end-on)
- Stage size
- 8x5m
- Stage height
- Ground level
- Overhead clearance
- 4m from stage to grid
- Storage facilities
- Small backstage space for quick changes and prop storage
- Lighting facilities
A 4m high truss grid holds a basic yet flexible rig of conventional wash and spot lights, suitable for all types of performance, with LED parcans for colour.
- Sound facilities
- Full-range musical speaker system, designed for SFX, music playback and live sound
- Detailed spec
- Full specification


Studio
Smaller yet perfectly formed, theSpace Triplex Studio is a 65 seat thrust theatre. The stage of 4x3m makes it the perfect venue for small/mid-scale theatre, sketch, spoken word, cabaret, comedy, stand-up and music.
- Audience capacity
- 65
- Stage size
- 4x3m
- Stage height
- Slightly raised (2cm)
- Overhead clearance
- 2.2m from stage to grid
- Storage facilities
- Limited backstage space for quick changes and small prop storage
- Lighting facilities
- Simple lighting rig sufficient for most requirements
- Sound facilities
- Sound system suitable for playback of background music and sound effects
- Detailed spec
- Full specification